our story
Home Designs
House & Land
Contact
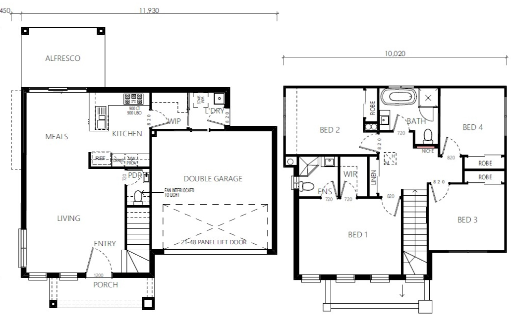
Elora 21
$403,800
House Width: 11.93
House Depth: 13.41
Minimum Land Width: 14m Minimum Lot Width
Ground Floor sqm: 63.78
First Floor sqm: 83.29
Garage sqm: 34.23
Porch sqm: 6.92
Alfresco sqm: 11.4
Total sqm: 199.62
4
1
2.5
2